4,203 SF of customizeable medical office space available in Brighton NY

Use the Matterport arrows for a guided tour of the entire suite. Be sure to view our video of the Lac de Ville Medical Building.
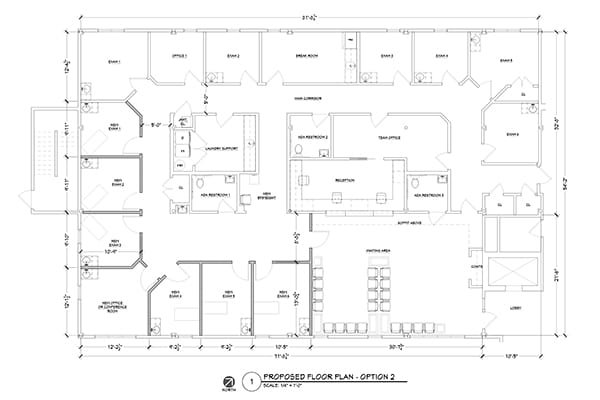
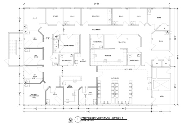
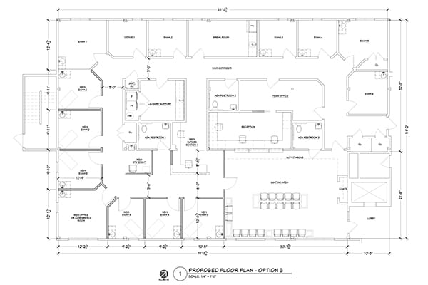
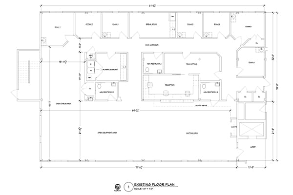
Shown here are the Existing Floor Plan and 3 space layout (optional) ideas to ponder for your medical practice. Click on a diagram to print it.

Minutes from Strong Memorial Hospital, Golisano Children’s Hospital, Highland Hospital, Monroe Community Hospital, University of Rochester Medical Center URMC and many major medical institutions, you’ll find space available on our first floor at the Lac de Ville Medical Building.

Suite 100 features six newly built medical exam rooms with new plumbing & cabinetry, LED lighting, and acoustical 8’9” ceilings.  The suite includes 3 ADA compliant restrooms, laundry room, break room, functional work, reception, and waiting areas, plus a large, customizable, open floor plan, which can be renovated to better suit your practice and patients’ needs.

Need more exam rooms? With existing plumbing capped-off already in the large, inverted L-shaped open area, this main floor suite is pre-designed and ready suited for a total of 12 medical exam rooms.

Be sure to click on the architectural drawings above for some space layout ideas (optional floor plans) for your medical practice. Our objectives are to work with you to meet your objectives. Please contact Jim Pappas Commercial Real Estate. Let’s get started today.

  • 1st Floor Suite  100 (4,203 sf)
  • Built-out new in 2022
  • Easy parking & ADA Access
  • Class A Medical Building
  • Brighton Medical Corridor
  • Laundry Room
  • 6 exam rooms, room for more
  • ADA Compliant, 3 restrooms
  • Customizable open plan
  • Two Entrances
  • Room to sublease
  • Access NYS 390, 490, 590